Обяви За нас Контакти
Продава 3-СТАЕН
град София, Банишора
бул. Сливница
265 914 €
520 082.58 лв.

(2 045 €, 3 999.67 лв./m2)
Цената е с включено ДДС
Коригирана в 14:21 на 28 ноември, 2025 год.
Обявата е посетена 448 пъти.
Площ:
130 m2
Етаж:
6-ти от 7
Газ:
НЕ
ТEЦ:
НЕ
Строителство:
Тухла, Ще бъде въведен в експлоатация 2026 г.

Описание на имота:


Клиентите на Мартинс са по-доволни! Попитай защо?

Предлагаме за продажба тристаен апартавент в новострояща се жилищна сграда на отлична локация в ж.к.'Банишора'.

Сградата се състои от сутерен и седем надземни етажа, на които има общо 6 самостоятелни обекта: 1 офис на два етажа, 4 апартамента и 1 мезонет. В сутерена на сградата са осигурени паркоместа за всеки от самостоятелните обекти. За удобство на живущите са предвидени и места за паркиране на седем велосипеда и четири мазета. Достъпът на превозните средства до сутерена е през хидравличен подемник, като четири от паркоместата са осигурени чрез модерна паркинг система. В задния двор са обособени и две външни паркоместа, снабдени със зарядна станция за електромобили.

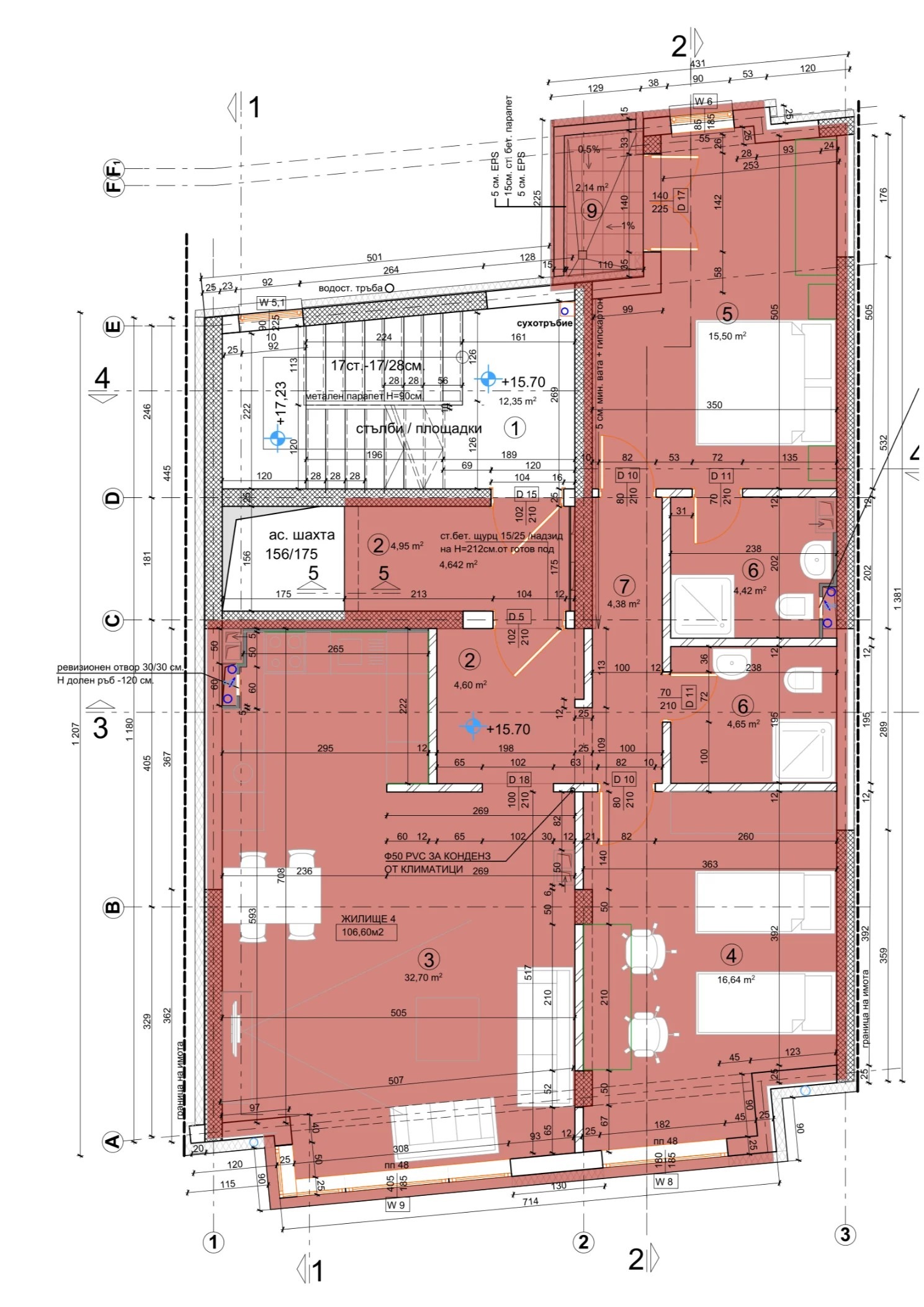
Апартаментът е разположен на пети етаж с прекрасно южно изложение.

Застроената площ е 106 кв.м и общи части 23 кв.м. Общата площ на апартамента е 130 кв.м.

Апартаментът разполага с две спални помещения и два санитарни възела.

Просторна дневна с кухненски тракт около 33 кв.м.

Има възможност за закупуване на паркомясто.

Строителството на сградата стартира през октомври 2024г. със срок на изпълнение края на 2026г.

Сградата ще бъде завършена с луксозни общи части и представително фоайе.

Фасадата ще е изпълнена в модерна комбинациия на алуминиев композит, структурна мазилка,дървесен декор и естествен камък.

Алуминиевата дограма е висок клас на белгийската фирма Reynaers.

Отоплението и климатизацията са предвидени с мултисплит система климатици.
Оферта 12569

За повече информация, тел.: 0883 97 79 79, или ни посетете на: www.martins.bg.
Особености
Тухла
Асансьор
За контакт:
0883977979
Брокер:
Людмила Цонева
0883977979
Офис: София, бул. Черни връх 32Г, етаж 2, офис 2
Още оферти от брокера: Продава | Дава под наем | Купува | Наема
Агенция:
МАРТИНС
0883 97 79 79
МАРТИНС logo
Медал за прослужено време
В imot.bg от 2010 г.
martins.imot.bg
Адрес:
област София, гр. София, бул. Черни връх 32Г
http://www.martins.bg
ИЗПРАТИ ЗАПИТВАНЕ
ИЗПРАТИ ЗАПИТВАНЕТО

Продава 3-СТАЕН
град София, Банишора
бул. Сливница
Обява: 1c174895790385032

265 914 €
520 082.58 лв.
(2 045 €, 3 999.67 лв./m2)

Цената е с включено ДДС
ЗАПАЗИ ОБЯВАТА

Местоположение: град София, Банишора, бул. Сливница

Допълнителни данни за имотите в района и сравнение с други райони

Покажи

Период

* Средните цени са определени чрез медианна стойност